Collegamento Prequalificato a Flangia Saldata Non Irrigidita-Anima Saldata (WUF-W) - AISC

Questo articolo è disponibile anche in:
Tradotto dall'intelligenza artificiale dall'inglese
Questo fa parte di una serie di collegamenti sismici a momento prequalificati che confrontano IDEA StatiCa con i calcoli tradizionali. L'obiettivo principale è valutare il comportamento dei collegamenti tramite IDEA StatiCa e confrontarlo con le formule AISC e il software FEA ABAQUS.

Questo esempio di verifica è stato preparato nell'ambito di un progetto congiunto tra Ohio State University e IDEA StatiCa. Gli autori sono elencati di seguito:

  • Baris Kasapoglu, dottorando
  • Ali Nassiri, Ph.D.
  • Halil Sezen, Ph.D.
inline image in article


3.1. Introduzione

Il terzo collegamento prequalificato trattato in questo studio di verifica è il collegamento a momento a flangia saldata non irrigidita-anima saldata (WUF-W). In questo capitolo, analogamente ai capitoli precedenti, sei collegamenti in acciaio investigati sperimentalmente sono stati selezionati dalla letteratura per confrontare le loro resistenze a momento flettente ottenute con IDEA StatiCa e con la procedura di progetto AISC. Inoltre, è stato eseguito il confronto momento-rotazione tra IDEA StatiCa e ABAQUS per uno dei campioni selezionato come modello di riferimento.

3.2 Studio Sperimentale

Ricles et al. (2000) hanno condotto una serie di esperimenti per studiare le prestazioni sismiche di collegamenti a flangia saldata non irrigidita duttili presso la Lehigh University. A tale scopo, sei collegamenti esterni e cinque interni in scala reale sono stati sottoposti a carichi ciclici. Sebbene i dettagli di saldatura e geometrici di nessuno dei campioni testati soddisfino necessariamente i requisiti dell'ultima versione di AISC 358 (2016), questo studio sperimentale è stato selezionato per essere esaminato nel presente studio di verifica per i seguenti motivi:

  • Non esistono indagini sperimentali condotte negli Stati Uniti per il WUF-W con campioni che soddisfino tutti i requisiti delineati in AISC 358 (2016)
  • Essere uno degli studi sperimentali che hanno costituito la base dei requisiti di prequalificazione dei collegamenti a momento WUF-W in AISC 358 (2016)
  • Questa ricerca sperimentale è stata sponsorizzata dalla SAC Joint Venture con finanziamenti della Federal Emergency Management Agency (FEMA) per valutare i dettagli migliorati dei collegamenti a momento WUF-W. Il programma di ricerca SAC è stato attuato per migliorare la progettazione e le prestazioni dei collegamenti in acciaio dopo che sono state osservate scarse prestazioni in alcuni collegamenti a seguito del terremoto di Northridge del 1994.

La configurazione di prova per i collegamenti interni è illustrata nella Figura 3.1. La lunghezza tra il supporto della trave e l'asse del pilastro era di 177 in. (4,50 m), e la lunghezza dall'attuatore al supporto inferiore del pilastro era di 156 in. (3,96 m). Tra gli 11 collegamenti testati, sei di essi sono stati scelti per essere trattati in questo studio di verifica. Le proprietà geometriche e dei materiali dei sei collegamenti selezionati sono presentate nelle Tabelle 3.1 e 3.2, e le configurazioni dei campioni sono mostrate nelle Figure da 3.2 a 3.4.

Tabella 3.1: Proprietà dei campioni WUF-W

N. CampioneTravePilastroDimensioni piastra a taglio (in.)Spessore piastra di rinforzo (in.)Spessore piastra di continuità (in.)
Baseline (T1)W36x150W14x3115/8x5x30.5-1.0
T5W36x150W14x3115/8x5x30.51/2 (un lato)-
C1W36x150W14x3985/8x5x30.53/4 (entrambi i lati)-
C2W36x150W14x3985/8x5x30.53/8 (entrambi i lati)1.0
C3W36x150W27x2585/8x5x30.53/8 (entrambi i lati)-
C4W36x150W27x2585/8x5x30.53/4 (entrambi i lati)1.0
inline image in article

Figura 3.1: Configurazione di prova (Ricles et al., 2000)

inline image in article

Figura 3.2: Sinistra) Configurazione del modello di riferimento T1; Destra) configurazione del campione T5 (Ricles et al., 2000)

inline image in article

Figura 3.3: Sinistra) Configurazione del campione C1; Destra) configurazione del campione C2 (Ricles et al., 2000)

inline image in article

Figura 3.4: Sinistra) Configurazione del campione C3; Destra) configurazione del campione C4 (Ricles et al., 2000)


Tabella 3.2: Proprietà dei materiali misurate dei campioni WUF-W (Ricles et al., 2000)

 N. CampioneSezioneTensione di snervamento (ksi)Tensione ultima (ksi)
Baseline (T1)Pilastro (flangia)47.369.5

Trave (flangia)55.171.6

Piastra a taglio51.375.5

Piastra di continuità38.262.9
T5Pilastro (flangia)47.369.5

Trave (flangia)55.171.6

Piastra a taglio51.375.5

Piastra di rinforzo53.072.0
C1Pilastro (flangia)53.272.4

Trave (flangia)56.772.5

Piastra a taglio51.375.5

Piastra di rinforzo57.176.7
C2Pilastro (flangia)53.272.4

Trave (flangia)56.772.5

Piastra a taglio51.375.5

Piastra di rinforzo57.176.7

Piastra di continuità53.070.9
C3Pilastro (flangia)50.273.3

Trave (flangia)55.171.6

Piastra a taglio51.375.5

Piastra di rinforzo64.585.2
C4Pilastro (flangia)50.273.3

Trave (flangia)55.171.6

Piastra a taglio51.375.5

Piastra di rinforzo64.575.5

Piastra di continuità64.585.2

Il modello di riferimento (campione T1) e il campione T5 sono collegamenti esterni, mentre gli altri sono collegamenti interni che consistono in travi identiche e collegamenti collegati allo stesso pilastro da ciascun lato orizzontale (vedere Figura 3.1). Poiché i collegamenti identici hanno mostrato prestazioni quasi identiche durante le prove, di seguito viene condivisa solo una delle foto post-prova e delle relazioni momento-rotazione per ciascun campione interno trattato in questo studio (campioni C1, C2, C3 e C4).

L'anima della trave del modello di riferimento è stata saldata a piena penetrazione alla flangia del pilastro e una saldatura supplementare è stata fornita continuamente attorno ai bordi della piastra a taglio. È stato riportato che la saldatura a piena penetrazione tra la piastra a taglio e la flangia del pilastro si è fessurata durante i cicli al 2% di deriva, e le flange della trave si sono fessurate durante i cicli al 4% di deriva come mostrato nella Figura 3.5. Il campione T5 è stato progettato diversamente dal modello di riferimento con una piastra di rinforzo, una saldatura parziale tra la piastra a taglio e l'anima della trave, una dimensione maggiore del cordone di saldatura a filetto tra la piastra a taglio e la flangia del pilastro, e senza piastra di continuità. È stato riportato che la frattura duttile si è verificata nella flangia della trave durante i cicli al 6% (vedere Figura 6).

inline image in article

Figura 3.5: Sinistra) Modello di riferimento (T1) dopo la prova; Destra) relazione momento-rotazione plastica totale (Ricles et al., 2000)

inline image in article

Figura 3.6: Sinistra) Campione T5 dopo la prova; Destra) relazione momento-rotazione plastica totale (Ricles et al., 2000)

Il campione C1 era uno dei quattro collegamenti interni trattati in questo studio. Aveva una sezione del pilastro più grande e una piastra di rinforzo più spessa rispetto al campione T5. La frattura duttile è stata osservata al primo ciclo del 5% di deriva sulla flangia superiore della trave ovest e al secondo ciclo del 5% di deriva sulla flangia superiore della trave est, come illustrato nella Figura 3.7. Il campione C2, diversamente dal campione C1, è stato progettato con una piastra di continuità e con una piastra di rinforzo più sottile. I risultati sperimentali hanno mostrato che il campione C2 ha ceduto durante i cicli al 6% di deriva a causa della frattura duttile su entrambe le flange della trave come mostrato nella Figura 3.8.

Il campione C3 era composto da un pilastro più alto e più sottile rispetto ai primi quattro campioni. Nel rapporto di prova è stato dichiarato che la frattura duttile della flangia della trave ovest è stata osservata durante il primo ciclo al 5,5% di deriva di piano come mostrato nella Figura 3.9. Il campione C4 aveva piastre di rinforzo e di continuità più spesse in aggiunta alla configurazione del campione C3. Durante l'esperimento, la frattura duttile si è verificata alla fine del ciclo al 6% di deriva (Figura 3.10).

inline image in article

Figura 3.7: Sinistra) Campione C1 dopo la prova; Destra) relazione momento-rotazione plastica totale (Ricles et al., 2000)

inline image in article

Figura 3.8: Sinistra) Campione C2 dopo la prova; Destra) relazione momento-rotazione plastica totale (Ricles et al., 2000)

inline image in article

Figura 3.9: Sinistra) Campione C3 dopo la prova; Destra) relazione momento-rotazione plastica totale (Ricles et al., 2000)

inline image in article

Figura 3.10: Sinistra) Campione C4 dopo la prova; Destra) relazione momento-rotazione plastica totale (Ricles et al., 2000)

3.3 Calcoli di Verifica Normativa

È stata seguita la procedura delineata nella Sezione 8.7 di AISC 358 (2016) per i collegamenti WUF-W, e le seguenti verifiche sono state eseguite per i sei campioni.

  • Verifica dei limiti geometrici della trave                                         (AISC 358 Sec. 8.3.1)
  • Verifica dei limiti geometrici del pilastro                                      (AISC 358 Sec. 8.3.2)
  • Verifica della resistenza a taglio di progetto della trave                         (AISC 358, Sec. 8.7)
  • Verifica della resistenza flessionale                                                           (AISC 360, Eq. F2-1)
  • Verifica dei requisiti della piastra di continuità                                     (AISC 341, Sec.E3.6f.2)
  • Verifica della relazione di resistenza pilastro-trave                             (AISC 358 Section 8.4)
  • Verifica delle saldature flangia trave-flangia pilastro                           (AISC 358 Section 8.5)
  • Verifica della geometria del foro di accesso alla saldatura                         (AWS D1.8/D1.8M)
  • Verifica del collegamento anima trave-pilastro                                (AISC 358 Section 8.6)

Il riepilogo delle verifiche normative AISC 358 (2016) dei sei campioni è presentato nella Tabella 3.3. I dettagli dei calcoli e delle verifiche di progetto sono forniti nelle Appendici E e F. 

Tabella 3.3: Verifiche normative AISC 358 (2016) per i campioni

Verifiche di ProgettoBaseline (T1)T5C1C2C3C4
Limiti geometrici della traveOKOKOKOKOKOK
Limiti geometrici del pilastroOKOKOKOKOKOK
Resistenza a taglio di progetto della traveOKNon OKNon OKNon OKNon OKNon OK
Resistenza flessionale della traveOKOKOKOKOKOK
Requisiti della piastra di continuitàNon OK--Non OK-Non OK
Relazione di resistenza pilastro-traveOKOKOKOKOKOK
Collegamento flangia trave-flangia pilastroOKOKOKOKOKOK
Geometria del foro di accesso alla saldaturaNon OKNon OKNon OKNon OKNon OKNon OK
Collegamento anima trave-pilastroNon OKOKOKOKOKOK
Zona del pannelloOKOKOKNon OKOKOK

Si assume che la cerniera plastica si formi alla faccia del pilastro in conformità con la Sezione 8.7 di AISC 358 (2016). La resistenza a momento della trave nella posizione della cerniera plastica, \(M_{by@ph}\), può essere calcolata utilizzando l'Equazione 3.1.

 \(M_{by@ph}\) = \(F_{yb}Z_{bx}\)                                                                                                (3.1)

dove \(F_{yb}\) è la tensione di snervamento della trave, \(Z_{bx}\) è il modulo di resistenza plastico della trave. Le capacità a momento plastico dei campioni sono state calcolate e presentate nella Tabella 3.4.

Tabella 3.4: Capacità a momento plastico dei campioni calcolate seguendo la procedura di progetto AISC

N. CampioneCapacità a momento plastico (kips-in.)
Baseline32.013
T532.013
C132.943
C232.943
C332.013
C432.013

3.4 Analisi con IDEA StatiCa

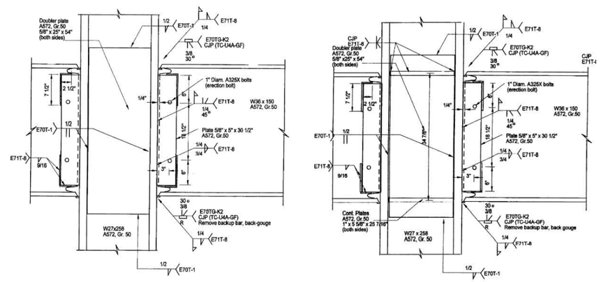
I sei campioni selezionati sono stati modellati in IDEA StatiCa con l'obiettivo di simulare il comportamento degli esperimenti. Le loro capacità a momento e le modalità di collasso sono state identificate utilizzando il tipo di analisi tensione-deformazione (ovvero EPS). Le proprietà dei materiali misurate fornite in Ricles et al. (2000) (vedere Tabella 3.2) sono state introdotte nel software e i fattori di resistenza sono stati impostati a 1,0. Utilizzando il tipo di analisi della rigidezza del collegamento (ovvero ST) in IDEA StatiCa, la relazione momento-rotazione è stata calcolata per il modello di riferimento.

3.4.1 Analisi del Modello di Riferimento

Il modello IDEA StatiCa è stato sviluppato per il modello di riferimento. Le proprietà dei materiali misurate sono state introdotte e i coefficienti di sovraresistenza, \(R_{y}\) e \(R_{t}\), sono stati impostati pari a 1,0 (vedere Figura 3.11). Inoltre, tutti i fattori di resistenza LRFD sono stati impostati a 1,0 per confrontare la risposta effettiva calcolata dei collegamenti con quella misurata durante l'esperimento di laboratorio (Ricles et al., 2000). Per ottenere i carichi all'asse del pilastro, è stato sviluppato un modello di telaio trave-pilastro in SAP2000 utilizzando le lunghezze del pilastro e della trave nella configurazione di prova. È stato utilizzato un vincolo a cerniera alla base del pilastro e un appoggio a rullo all'estremità della trave.

Per calcolare la capacità a momento del modello di riferimento, è stato applicato un carico incrementale utilizzando l'analisi tensione-deformazione (ovvero EPS) con l'opzione "carichi in equilibrio" nel modello IDEA StatiCa fino al raggiungimento di uno dei seguenti criteri:

  1. 5% di deformazione plastica nelle piastre
  2. 100% della capacità resistente nei bulloni
  3. 100% della capacità resistente nelle saldature

La saldatura tra la piastra a taglio e la flangia del pilastro ha raggiunto la sua capacità resistente quando i valori della forza di taglio e del momento corrispondente erano rispettivamente 167,70 kips e 29.700 kips-in. (Figura 3.11). Utilizzando l'analisi "ST", è stata ottenuta la relazione momento-rotazione mostrata nella Figura 3.12.


inline image in article

Figura 3.11: Modello IDEA StatiCa per il modello di riferimento

inline image in article

Figura 3.12: Relazione momento-rotazione per il modello di riferimento

3.4.2 Analisi dei Campioni di Variazione

L'analisi con IDEA StatiCa è stata eseguita per il campione T5 seguendo la procedura descritta per il modello di riferimento. È stato osservato che l'anima della trave ha raggiunto il 5% di deformazione plastica quando la forza di taglio e il momento corrispondente erano rispettivamente 205,70 kips e 36.420  kips-in. (Figura 3.13).

inline image in article

Figura 3.13: Modello IDEA StatiCa per il campione T5

Il campione C1 è stato modellato e analizzato in IDEA StatiCa seguendo la stessa procedura. È stato osservato che l'anima della trave ha raggiunto il 5% di deformazione plastica quando la forza di taglio e il momento corrispondente erano rispettivamente 212,60 kips e 37.650  kips-in. (Figura 3.14).

inline image in article

Figura 3.14: Modello IDEA StatiCa per il campione C1

Seguendo la stessa procedura descritta in questa sezione, è stata eseguita l'analisi con IDEA StatiCa per il campione C2. È stato osservato che l'anima della trave ha raggiunto il 5% di deformazione plastica quando la forza di taglio e il momento corrispondente erano rispettivamente 212,60 kips e 37.650 kips-in. (Figura 3.15).

inline image in article

Figura 3.15: Modello IDEA StatiCa per il campione C2

Seguendo la stessa procedura, è stata eseguita l'analisi con IDEA StatiCa per il campione C3. È stato osservato che l'anima della trave ha raggiunto il 5% di deformazione plastica quando la forza di taglio e il momento corrispondente erano rispettivamente 213,20 kips e 37.750 kips-in. (Figura 3.16).

inline image in article

Figura 3.16: Modello IDEA StatiCa per il campione C3

Seguendo la stessa procedura, è stata condotta l'analisi con IDEA StatiCa per il campione C4. È stato osservato che l'anima della trave ha raggiunto il 5% di deformazione plastica quando la forza di taglio e il momento corrispondente erano rispettivamente 213,60 kips e 37.820 kips-in. (Figura 3.17).

inline image in article

Figura 3.17: Modello IDEA StatiCa per il campione C4

I sei campioni sono stati analizzati con IDEA StatiCa e le loro capacità a momento all'asse del pilastro sono state calcolate rappresentando le condizioni di prova. Per confrontare le capacità a momento con quelle calcolate seguendo la procedura AISC 358, le capacità a momento alla faccia del pilastro sono state calcolate utilizzando l'Eq. 3.6 e presentate nella Tabella 3.5.

        \(M_{y@foc}\) = \(M_{y@cc} + V\frac{d_{c}}{2}\)                                                                                         (3.6)

dove \(M_{y@foc}\) è la capacità a momento alla faccia del pilastro, \(M_{y@cc}\) è la capacità a momento all'asse del pilastro, \(V\) è la forza di taglio e \(d_{c}\) è l'altezza del pilastro.

Tabella 3.5: Capacità a momento calcolata da IDEA StatiCa

N. Campione (kips) (in.)(kips-in.)(kips-in.)
Baseline (T1)167,7017,129.70028.266
T5205,7017,136.42034.662
C1212,6018,337.65035.705
C2212,6018,337.65035.705
C3213,2029,037.75034.659
C4213,6029,037.82034.723

3.5. Analisi con ABAQUS

In questa sezione, il modello di riferimento sviluppato nella Sezione 3.4.1 è stato ricostruito utilizzando il software ABAQUS (versione 2022) per l'analisi FE e i risultati sono stati confrontati con IDEA StatiCa. Il modello CAD per l'analisi FE è stato generato utilizzando la piattaforma viewer di IDEA StatiCa. I due bulloni e le 5 linee di saldatura (ovvero tra l'anima della piastra a taglio-trave e la piastra a taglio-flangia del pilastro) sono stati poi aggiunti manualmente all'assemblaggio utilizzando l'interfaccia CAD in ABAQUS. Il carico verticale di 182,2 kips e il momento corrispondente di 32.270 kips-in. (attorno all'asse Y) sono stati applicati a un punto di riferimento definito (ovvero RF1) all'asse del pilastro come mostrato nella Figura 3.18. La lunghezza analitica del pilastro in IDEA StatiCa era di 215,45 in. Pertanto, per riprodurre la lunghezza identica del pilastro in ABAQUS, altri due punti di riferimento (ovvero RF2 e RF3) sono stati introdotti a 107,725 in. dal centro del pilastro lungo l'asse Z in entrambe le direzioni (vedere Figura 3.18). Questi due punti di riferimento erano vincolati in tutte le direzioni e collegati alle facce superiore e inferiore del pilastro utilizzando il modulo connector builder in ABAQUS. In ABAQUS, la dimensione degli elementi è stata scelta tra 0,1–0,25 in. dopo l'analisi di sensibilità della rete e sono stati generati in totale 240.417 elementi. Come tipo di elemento è stato selezionato il solido 3D a 8 nodi con integrazione ridotta lineare (ovvero C3D8R).

inline image in article

Figura 3.18: Configurazione del modello in ABAQUS

Il vincolo di tipo tie è stato applicato tra le linee di saldatura e le parti collegate. Il comportamento del materiale è stato modellato utilizzando la plasticità bilineare in ABAQUS. Gli altri parametri, tra cui densità, modulo elastico e coefficiente di Poisson, sono stati ricavati dalla libreria dei materiali di IDEA StatiCa. La simulazione numerica è stata eseguita su quattro processori (Intel Xenon (R) CPU E5-2698 v4 @ 2,20 GHz) e ha richiesto circa 155 minuti per essere completata. La Figura 3.19 confronta la tensione di von Mises prevista tra IDEA StatiCa e ABAQUS.

inline image in article

Figura 3.19: Confronto della tensione di von Mises calcolata tra i modelli IDEA StatiCa e ABAQUS

La tensione massima prevista in IDEA StatiCa era di 55,90 ksi sulla flangia superiore della trave (si noti che la legenda di IDEA StatiCa mostra i dati di progetto), mentre il modello ABAQUS mostra una tensione massima di 56,5 ksi nella stessa posizione. La tensione massima di 57 ksi nella legenda di ABAQUS appartiene alla lunga linea di saldatura frontale che collega la piastra a taglio al pilastro. La distribuzione delle tensioni leggermente diversa è probabilmente dovuta alla considerazione della lunghezza del pilastro in ABAQUS e al modo in cui sono state applicate le condizioni al contorno, all'utilizzo di una rete più fine nell'analisi FE e al modello CAD semplificato in IDEA StatiCa. Si noti che gli autori hanno eseguito anche un'analisi di sensibilità della rete di routine per il modello IDEA StatiCa e sono state osservate alcune incongruenze nei risultati.

inline image in article

Figura 3.20: Confronto della deformazione plastica calcolata tra i modelli IDEA StatiCa e ABAQUS

La deformazione plastica massima calcolata in IDEA StatiCa e ABAQUS era rispettivamente del 10,8% e dell'11% (entrambe sulla linea di saldatura frontale che collega la piastra a taglio al pilastro). Inoltre, la regione di deformazione plastica prevista da IDEA StatiCa era coerente con la mappa di snervamento calcolata in ABAQUS (ovvero la riga inferiore nella Figura 3.20). La Figura 3.21 mostra il confronto della curva momento-rotazione tra i due software rispetto all'asse del pilastro. Si noti che nella Figura 3.21, per ottenere la rotazione totale da IDEA StatiCa (mostrata dalla linea arancione tratteggiata), la rotazione elastica della trave all'asse del pilastro è stata calcolata utilizzando SAP2000 e poi aggiunta alla curva di rotazione plastica predefinita riportata da IDEA StatiCa (mostrata dalla linea arancione continua). Entrambi i modelli offrono stime comparabili della rigidezza iniziale. La lieve discrepanza potrebbe essere associata alla differenza nei tipi di elementi (ovvero elemento solido in ABAQUS rispetto all'elemento shell in IDEA StatiCa) e all'utilizzo del vincolo tie in ABAQUS per rappresentare le saldature.

inline image in article

Figura 3.21: Confronto momento-rotazione tra IDEA StatiCa e ABAQUS

3.6 Riepilogo e Confronto dei Risultati

Le osservazioni sperimentali indicano che il modello di riferimento ha ceduto a causa della frattura verificatasi nella saldatura tra l'anima della trave e la flangia del pilastro. Analogamente, l'analisi con IDEA StatiCa ha indicato che la saldatura tra la piastra a taglio e la flangia del pilastro ha ceduto. Inoltre, le verifiche normative AISC hanno mostrato che questa saldatura non soddisfaceva i limiti del collegamento anima trave-pilastro delineati nella Sezione 8.6 di AISC 358 (2016) (vedere Tabella 3.3). Le relazioni momento-rotazione plastica misurate durante l'esperimento e calcolate mediante l'analisi con IDEA StatiCa per il modello di riferimento sono confrontate nella Figura 3.22. La capacità a momento calcolata seguendo la procedura AISC alla faccia del pilastro è stata trasferita all'asse del pilastro utilizzando l'Eq. 3.6, poiché il confronto momento-rotazione è stato eseguito all'asse del pilastro, ed è mostrata nello stesso grafico con quella calcolata utilizzando l'analisi tensione-deformazione di IDEA StatiCa (Figura 3.5).

inline image in article

Figura 3.22: Confronto momento-rotazione

Per quanto riguarda i campioni di variazione (vedere Sezione 3.2), è stato osservato nello studio sperimentale (Ricles et al., 2000) che i campioni hanno ceduto a causa di grave instabilità locale e frattura nelle flange della trave (Figure da 3.6 a 3.10). Analogamente, l'analisi con IDEA StatiCa ha mostrato che i campioni T5, C1, C2, C3 e C4 hanno raggiunto le loro capacità nell'anima della trave che ha raggiunto il limite del 5% di deformazione plastica (Figure da 3.13 a 3.17). D'altra parte, sulla base delle verifiche normative AISC, si prevedeva che il collasso si verificasse nella trave, sebbene alcune delle verifiche non fossero pienamente soddisfatte (ad esempio, la piastra di continuità e il foro di accesso alla saldatura nella Tabella 3.3). Ciò è dovuto a una leggera differenza nei requisiti geometrici. La capacità a momento di tutti i campioni calcolata utilizzando IDEA StatiCa (Tabella 3.5) e seguendo la procedura AISC (Tabella 3.4) è presentata nella Figura 3.23.

Tutte le resistenze a momento calcolate da IDEA StatiCa (utilizzando le proprietà effettive o misurate) sono circa l'8% maggiori rispetto a quelle dell'AISC, ad eccezione del modello di riferimento. Ciò è ragionevole perché la resistenza a momento AISC, \(M_{p}\), si basa sull'ipotesi di progetto che la posizione della cerniera plastica sia presa alla faccia del pilastro in conformità con la Sezione 8.7 di AISC 358 (2016). D'altra parte, FEMA (2000) raccomanda che la posizione della cerniera plastica sia presa a metà dell'altezza della trave dalla faccia del pilastro per i collegamenti a momento WUF-W. Se si fosse assunta la posizione della cerniera plastica a una certa distanza dalla faccia del pilastro, si sarebbe dovuto considerare il momento aggiuntivo dovuto alla forza di taglio sulla cerniera plastica fino alla faccia del pilastro, ottenendo così capacità a momento maggiori. La differenza tra le capacità a momento calcolate seguendo la procedura di progetto AISC e utilizzando IDEA StatiCa può essere attribuita all'ipotesi conservativa di AISC 358 per la posizione della cerniera plastica dei collegamenti a momento WUF-W. 

inline image in article

Figura 3.23: Capacità a momento calcolata da IDEA StatiCa e dalla procedura AISC

Leggi lo studio completo sui collegamenti prequalificati!

Riferimenti

AISC (2016), "Prequalified Connections for Special and Intermediate Steel Moment Frames for Seismic Applications, including Supplement No. 1," American Institute of Steel Construction ANSI/AISC 358-16, Chicago, Illinois.

Ricles, J.M., Mao, C., Lu, L.W. e Fisher, J.W. (2000), "Development and Evaluation of Improved Details for Ductile Welded Unreinforced Flange Connections," Report No. SAC/BD-00-24, SAC Joint Venture, Sacramento, CA.

FEMA (2000), Recommended Seismic Design Criteria for New Steel Moment-Frame Buildings, FEMA 350, Federal Emergency Management Agency, Washington, DC.

Articoli correlati