Seismická analýza v aplikaci IDEA StatiCa Connection

Tento článek je dostupný také v dalších jazycích:
Kapacitní analýza / návrhová únosnost poskytuje normový posudek pro ošetření účinků seismicity a seismického zatížení. Posudek dle normy poskytuje výsledky o dostatečné duktilitě přípoje, tj. zda se poloha plastického kloubu vyskytuje tam, kde se očekává, a vypočítává únosnost přípoje.

Úvod

Při navrhování konstrukce tak, aby odolala kombinaci seismických zatěžovacích stavů, musí inženýr zvolit koncepci:

  • Nízká disipativita konstrukce
    • q = 1 až 2 (profily třídy 4 → q = 1)
    • Žádné zvláštní požadavky na ocelové konstrukce
    • Nízká třída duktility (DCL)
  • Disipativní chování konstrukce
    • q ≤ 4 – Střední třída duktility (DCM), profily třídy 1, 2
    • q > 4 – Vysoká třída duktility (DCH), profily třídy 1

Pro nízké disipativní chování konstrukce nejsou nutné žádné zvláštní požadavky a vyžadují se obvyklé posudky přípojů. Pro vysoké seizmické zatížení je však návrh konstrukce, která zůstává v pružném stavu, neproveditelný a je nutné přejít k disipativnímu chování konstrukce. Pro takové chování je určena kapacitní analýza / návrhová únosnost v aplikaci IDEA StatiCa Connection.

Možné konstrukční typy seismicky odolných systémů povolené v normě EN 1998-1 jsou:

  • Momentové rámy (MRF)
    • plastické klouby na koncích nosníků nebo ve styčnících mezi nosníky se sloupy
    • plastické klouby mohou být také:
      • u paty sloupu
      • nahoře na sloupu v horním patře
  • Rámy se osovým zavětrováním (CBF):
    • disipativní zóny se nacházejí v diagonále v tahu
  • Rámy s excentrickým zavětrováním (EBF):
    • disipativní zóny v seismických vazbách, většinou v nosnících
  • Obrácené kyvadlové konstrukce
  • Ocelové konstrukce spojené s betonovými jádry nebo betonovými stěnami
  • Dvojité rámy z momentově odolných rámů v kombinaci se zavětrováním
    • MRF se podílí > 25 % na celkové pevnosti a tuhost
  • Momentově odolné rámy v kombinaci s železobetonovými výplněmi

Stanovení seismických zatěžovacích stavů

Vnitřní síly pro kombinaci seismického zatížení lze určit jednou z následujících metod seismické analýzy konstrukce:

  • Metoda bočních sil
  • Lineární analýza modálního spektra odezvy
  • Nelineární statická analýza pushover
  • Nelineární dynamická analýza s časovou historií

Při použití lineární analýzy modálního spektra odezvy dochází ke "ztrátě znamének" vnitřních sil v důsledku metody odmocniny ze součtu čtverců (SRSS). Znaménka by měla být znovu získána metodou bočních sil - styčník v aplikaci IDEA StatiCa musí být v rovnováze. Seismická zatížení jsou pro analýzu v nahodilé kombinaci. Styčníky se navrhují pomocí standardní analýzy napětí, deformace (EPS) v programu IDEA StatiCa Connection.

Kromě toho musí být nedisipativní prvky schopny bezpečně a bez výrazných deformací přenášet síly potřebné k vytvoření plastických kloubů v disipativních prutech. Tato dodatečná kontrola se provádí v kapacitní analýze / návrhové únosnosti (CD).

Kapacitní analýza / Návrhová únosnost

Cílem kapacitní analýzy je potvrdit, že budova prochází řízeným duktilním chováním, aby se zabránilo jejímu zhroucení při uvažované úrovni zemětřesení. To zahrnuje návrh konstrukce tak, aby umožňoval duktilní porušení v klíčových předvídatelných místech konstrukce a zabránil vzniku jiných typů porušení v blízkosti těchto míst nebo jinde v konstrukci.

Jinými slovy, v konstrukci, která obsahuje jak křehké, tak duktilní (tvárné) prvky, je kapacitní analýza metodou, která konstrukci zajistí celkovou tvárnost.

Některé prvky jsou považovány za disipativní a jiné za nedisipativní. Přípoje jsou obvykle nedisipativní, ale v některých případech mohou být disipativní. U disipativních prvků se očekává, že během seismického zatěžovacího stavu projdou významnými plastickými deformacemi, seismická energie se může při těchto deformacích vyčerpat, a seismické zatížení je proto výrazně nižší. Na druhou stranu musí být disipativní prvky schopny odolávat cyklickým deformacím bez trhlin a všechny nedisipativní prvky musí být schopny přenášet zatížení vyvolané disipativními prvky. Pro zajištění vzniku plastického kloubu v disipativním prvku se místo jmenovité meze kluzu používá pravděpodobná mez kluzu a někdy, zejména u nosníků v MRF (momentové rámy), se zohledňuje také tahové zpevnění. Pevnost disipativních prutů se tedy bere jako:

\(f_{y,max} = \gamma_{sh} \cdot \gamma_{ov} \cdot f_y \) (EN)

\(F_{y,max}= C_{pr} \cdot R_y \cdot F_y \) (AISC)

kde:

  • γsh – součinitel tahového zpevnění, roven 1.1 v EN 1998-1 a 1.2 v EN 1993-1-8; hodnota 1.2 je doporučena v ECCS manuálu jelikož lépe odpovídá třídám oceli používaným pro seismicitu; upravitelný u materiálu disipativního prvku. 
  • γov – součinitel navýšení návrhové pevnosti, doporučená hodnota je 1.25; lze upravit v záložce Materiály
  • \(C_{pr} = \frac{F_y + F_u}{2 \cdot F_y}\) – koeficient tahového zpevnění – AISC 358-16 (2.4-2); lze zapnout nebo vypnout u disipativního prvku
  • Ry – poměr pravděpodobné a minimální meze kluzu – AISC 341-16 – tabulka A3.1; lze upravit v záložce Materiály

Pevnost v tahu se upravuje také u prvků vybraných jako disipativní:

\(f_{u,max}= \gamma_ov \cdot f_u \) (EN)

\(F_{u,max} = R_t \cdot F_u \) (AISC)

kde:

  • γov – součinitel navýšení návrhové pevnosti, doporučená hodnota je 1.25; lze upravit v záložce Materiály
  • Ru – poměr pravděpodobné a minimální pevnosti v tahu – AISC 341-16 – tabulka A3.1; lze upravit v záložce Materiály

Všechny faktory jsou modifikovatelné, což uživateli umožňuje velkou míru svobody. Navíc lze vytvořit více funkcí navýšení návrhové pevnosti s různými vlastnostmi, pro jeden plech lze zvolit ale pouze jednu. Součinitel tahového zpevnění se pro analýzu rámů se zavětrování obvykle nepoužívá (rovná se 1). Všimněte si, že součinitelé bezpečnosti (únosnosti/kapacity) se nepoužívají pro disipativní prvky (pruty nebo plechy s aplikovanou funkcí navýšení návrhové pevnosti).

Případová studie: Momentově odolné rámy

Nosník je obvykle disipativní prvek, ve kterém má vzniknout plastický kloub, a přípoj a sloup jsou nedisipativní prvky, které musí zůstat bez výrazných deformací. Nosník je zatížen zatížením nutným k vytvoření plastického kloubu v nosníku s pravděpodobnou mezí kluzu a odpovídající smykovou silou:

\[ M_{Ed} = f_{y,max} \cdot W_{pl} \]

\[V_{Ed} = \frac{2M_{Ed}}{L_h} + V_{gravity} \]

kde:

  • Wpl – plastický modul průřezu nosníku
  • Lh – vzdálenost mezi dvěma plastickými klouby na nosníku
  • Vgravity – smyková síla způsobená gravitačním zatížením v seismické kombinaci
inline image in article

Všimněte si, že pokud je použit oboustranný přípoj nosníku se sloupem, musí mít síly od stejného zatěžovacího stavu stejný směr, např.:

inline image in article
inline image in article

U tuhých přípojů jsou obvykle smykové síly zadány v uzlu. Ale použitá odpovídající smyková síla snižuje ohybový moment v plastickém kloubu. Moment v plastickém kloubu se vypočítá jako \(M_{Ed} = f_{y,max} \cdot W_{pl}\) a ohybový moment My v uzlu se zvýší o smykovou sílu Vz na \( M_y = f_{y,max} \cdot W_{pl} + V_z \cdot s_h \), kde sh je vzdálenost mezi uzlem a místem plastického kloubu. AISC 358 uvádí hodnotu sh, ale pro vzdálenost mezi čelem sloupu a plastickým kloubem.

Další možností je nastavit \(M_y = f_{y,max} \cdot W_{pl} \) a nastavit polohu smykové síly v místě zamýšleného plastického kloubu (Model > Síly v > Pozice).

inline image in article

Ke styčníku mohou být připojeny další nedisipativní prvky. Tyto prvky by měly být zatíženy gravitačním zatížením od nahodilé kombinace seizmického zatížení.

Konstrukční zásady

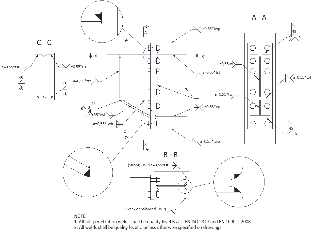
Konstrukční zásady uvedené v příslušných normách nejsou v aplikaci IDEA StatiCa Connection kontrolovány ale musí být dodrženy. Odolnost proti nízkocyklické únavě mnoha seismicky odolných spojů byla ověřena experimentálními zkouškami. Zejména detaily svarů jsou náchylné k únavovým trhlinám a pro přípoje disipativních prvků nestačí pouze standardní posudek svarů. Příklady detailů svarů předepsaných v projektu EQUALJOINTS jsou uvedeny níže.

Detaily svarů u přípojů s čelní deskou:

inline image in article

Detaily svarů pro styčníky s čelní deskou a náběhy:

inline image in article

Obloukové vybrání

inline image in article

Šířka příruby nosníku:  bf 

Výška nosníku:  db

Maximální hloubka vybrání:  c = 0.25 bf 

Doporučená hloubka vybrání:  c = 0.20 bf

Vzdálenost mezi čelem sloupu a začátkem redukovaného průřezu nosníku:  a = 0.6 bf

Délka oslabení příruby: s = 0.75 db

Ohybová tuhost přípoje

IDEA StatiCa Connection poskytuje diagramy ohybových momentů pro libovolný připojený prvek. Analýza tuhosti poskytuje (nejen) tyto výsledky:

  • Počáteční tuhost
  • Mezní kapacita pro 5% plastickou deformaci
  • Rotační kapacita pro 15% plastickou deformaci

Všechny jsou důležité pro správný seizmický návrh přípoje. Rotační kapacita (rotace ϕc) se používá pro hodnocení duktility přípoje. Uvedenou hodnotu lze porovnat s hodnotami doporučenými v normách.

inline image in article

Shrnutí

Styčník, který má být součástí seismicky odolného systému s disipativním chováním konstrukce musí být posouzen na:

  • standardní kombinaci zatížení (EPS analýza)
  • kombinaci nahodilého seismického zatížení (EPS analýza)
  • zatížení nutné k vytvoření plastického kloubu v disipativním prvku (CD analýza)

Rovněž je nutné dodržovat pravidla uvedená v normě.

Reference:

Související články